Unternehmen Objekt Büroflächen Hallenflächen Freiflächen Standort Download Kontakt Impressum
       
       
   
       
   
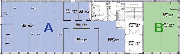
  Erdgeschoss Teilfläche A
Teilfläche B
ca.
ca.
268 qm
80 qm
 
     
 Sockelgeschoss   1. Obergeschoss 2. Obergeschoss
  [zurück]